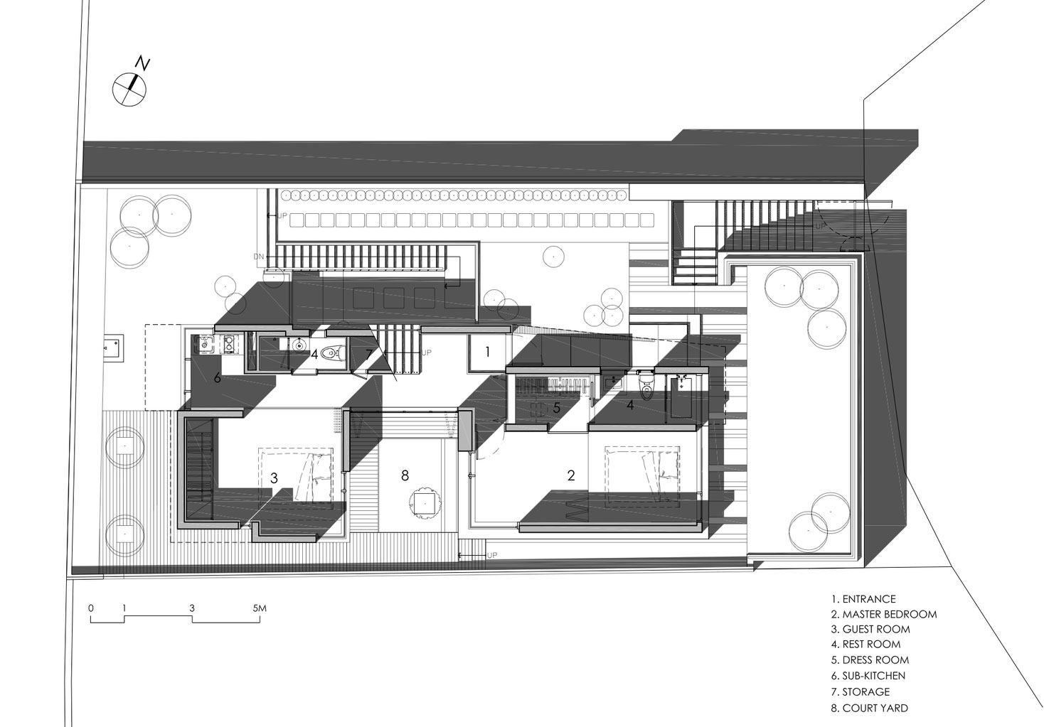
Trang chủ » Mẫu tham khảo » HOUSE 77 HOUSE 77 Ngày đăng: 01/10/2018 619 lượt xem Tin liên quan Dior store Boutique Shop “RONEN’S” HOUSE 020 HOUSE 019 HOUSE 012