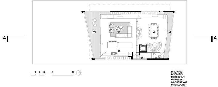
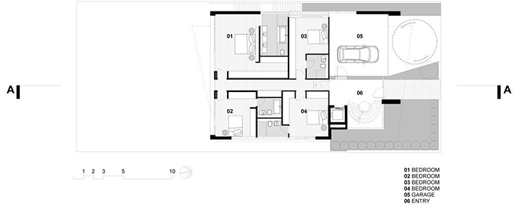
Trang chủ » Mẫu tham khảo » Nhà ở hiện đại » HOUSE 091 HOUSE 091 Ngày đăng: 29/03/2019 494 lượt xem Tin liên quan HOUSE 020 HOUSE 019 HOUSE 012 HOUSE 063 HOUSE 106